
Ecole Coranique à Djelfa



Localisation
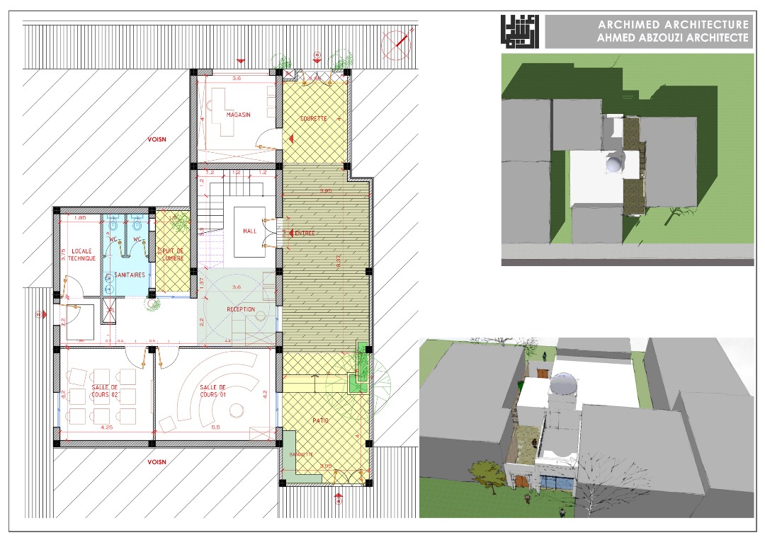
L'école est située en plein cœur de la ville de Djelfa en Algérie. Elle se trouve dans le centre-ville historique sur une parcelle de terrain avoisinant les 214 m².


Style de la bâtisse
L'espace extérieur devrait être inspiré de cela. Le traitement extérieur est plutôt sobre et inspirer de l'architecture traditionnelle algérienne (islamique)




Vues de la bâtisse






Plan du rez-de-chaussée


Création d'un passage piéton menant vers la mosquée au nord de l'école (ce dernier permet d'avoir l'éclairage naturel pour l'école.). Le passage est constitué d'une succession de patios dont l'un est couvert. (Ce dernier permet son usage en été pour l'enseignement du coran et aussi la création d'ombre par temps de chaleur. )
Deux salles de cours sont disponibles au rez-de-chaussée. L'une, est faite avec des tables et un tableau (moderne), la deuxième est plutôt traditionnelle avec des tapis et une assise en HALKA. (groupe autour du cheikh)
Des sanitaires sont nécessaires au bon fonctionnement de l'équipement, et un local technique pour la chaudière et outils de ménage et éventuellement la réserve d'eau..
Le point fort du projet est le patio en longueur qui crée une vraie centralité de l'équipement (un lieu convivial propice aux rencontres et a l'échange entre les usagers).
Autres détails importants, au-dessus de la réception, on trouve une coupole sur une double hauteur, elle donne le cachet à l'équipement et lui permet de respirer, à travers la ventilation naturelle qu'elle offre.
Il faut imaginer les enfants entrer et sortir entre les cours pour comprendre la nécessite des espaces dégagés tel que le hall d'entrée. (un flux important)
Le magasin doit exiger une activité en adéquation avec l'équipement. (vente de coran, djellaba, livres…)


Plan de l'étage à venir ...
Création d'un bureau et encore deux salles de cours et une petite bibliothèque.
Quels sont les mérites ?
Selon Ibn Mas'oûd (رضي الله عنه), le Prophète (صلى الله عليه و سلم) a dit: "Celui qui lit une seule lettre du Coran s'inscrit une bonne action et la bonne action a dix fois son salaire. Je ne dis pas que "Alif Lam Mim" est une lettre, mais Alif (أ) est une lettre, Lam (ل) est une lettre et Mim (م) est une lettre".
- At-Tirmidhi et Ibn Mâja avec une chaîne authentique
Selon 'Abdoullâh Ibn 'Amr Ibn Al-'As (رضي الله عنهما), le Prophète (صلى الله عليه و سلم) a dit: "On dira (le jour du jugement dernier) au lecteur assidu du Coran: "Lis et monte (les degrés du Paradis). Récite clairement comme tu le faisais dans le bas-monde. Ta place au Paradis te sera fixée au dernier verset que tu liras""
- Abou Dâwoûd et At-Tirmidhi
Selon Ibn 'Abbâs. (C'est un hadîth da'îf). On y rapporte de même :
" Allâh a Ses Gens parmi les humains. "
- " Qui sont-Ils Ô Envoyé d'Allâh ? " lui demanda-t-on.
- " Ce sont - répondit-Il - les Gens du Qur°ân. "
- At Tabarânî
"Lorsque des gens se rassemblent dans une demeure consacrée à Dieu pour y réciter son Livre (le Coran) et pour l'étudier ensemble, alors la Paix de la présence divine (en arabe : sakîna) descend sur eux ; la miséricorde les recouvre ; les anges les entourent, et Dieu les mentionne à ceux qui se trouvent auprès de Lui."
- Muslim